1設計士は営業では
ありません
施主の立場で最善の提案を行います。
納得できる家づくり
どこに相談すればいいの?
「注文住宅で家を建てたい。でも、どこに相談すればいいのかわからない——」
そんな声にお応えするために、
“安心して相談できる家づくり”をテーマに、
私たちの考え方・基本仕様・実際の事例を一つのページにまとめました。
このページが、あなたの家づくりを始めるきっかけになれば幸いです。
自由で高性能、そして納得できる家づくりを実現するためには、「建てる人」と「つくる人」が正面から向き合うことが欠かせません。
住まいるぱるでは、住宅展示場や営業中心の家づくりとは異なり、一級建築士や宅地建物取引士といった専門資格を持つ設計者・技術者が直接対面し、中立的な立場から家づくりをサポートしています。
不安を感じる方も多いかもしれませんが、費用は事前に明確に提示し、納得のうえで進めていきます。「高性能で良心的な家を、無理なく建てる」——それが私たちの基本姿勢です。
施主の立場で最善の提案を行います。
デザインや嗜好を大切にしながらも、無理・無駄を排除し、限られた予算を最も効果的に活かします。住宅展示場建築や豪華パンフレット制作など、過剰な販促コストを抑えることで、経費率を最小限にし、その分をお客様の家づくりに還元します。
断熱・採光・動線など、数字だけでなく「体感できる快適さ」を重視します。
今と未来を両立する空間設計が求められています。
設計士・施工者・不動産の各分野の資格者がチームとなり、お客様と直接向き合いながら中立的に家づくりを進めます。
コラム
「いい家は、いい土地から」——そう言われることがありますが、実際には“良い土地・悪い土地”というものは存在しません。 たとえ旗竿地や変形地であっても、設計の工夫次第で日当たりが良く、風通しのよい快適な住まいを実現できます。 むしろ大切なのは、「土地」と「建物」にかける費用のバランス」です。土地に予算をかけすぎると、肝心の建築費が不足することもあります。住まいるぱるでは、土地購入の段階から建築士が相談に参加し、全体の資金計画を見据えたアドバイスを行っています。

心地よく、長く住み続けられる家のために
私たちは、素材・性能・設計の三つを
一体で考えることで、“住みやすさ”が自然に
続いていく家をつくります。
住まいるぱるの家では、無垢の木の床材と漆喰壁を標準仕様としています。 自然素材を使用することで、住まいの空気環境が整い、シックハウスのリスクを大幅に軽減します。 特に漆喰は、抗菌・防カビ・湿度調整・消臭といった多彩な効果を持ち、その強アルカリ性によって自然の殺菌作用も期待できます。 見た目の美しさだけでなく、“呼吸する壁”が生む健やかさをぜひ体感してください。
「寒い」「結露」「ヒートショック」——これらは、家の性能で防げます。 住まいるぱるが推奨するのは、HEAT20 G2グレード(推奨UA値0.46)。これは国の省エネ基準(平成25年基準)に比べて約50%の暖房負荷を削減し、冬でも夜間暖房なしで室温が13℃を下回らない水準です。 高断熱・高気密の家は、単に“光熱費が安い”だけではありません。冷暖房の効率が上がり、体への負担が減ることで、健康寿命を延ばす家へとつながります。
間取りと収納が暮らしを変えます。 「落ち着く場所がない」「片づかない」「寒い」——その多くは、間取りや収納計画の見直しで解決できます。 空間の広がりは、面積だけでなく、天井高・動線・収納の配置でも演出できます。 住まいるぱるでは、豪華さよりも心地よさと使いやすさを重視し、日常の動きや家事リズムに合わせた「暮らしの設計」を行います。
注文住宅は唯一無二の住まいです。
家族構成、敷地条件、暮らし方、趣味嗜好、
ご予算など、お話し合いをし、
様々な要素を紐解きながら、実現します。
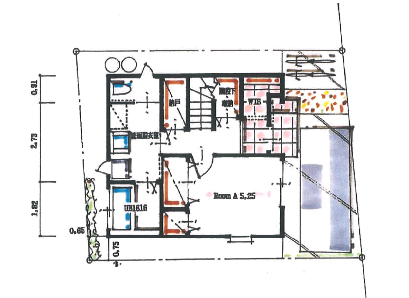
夏の暑さと冬の寒さに対応するため断熱性能を最優先に計画し、G3基準を大きく上回る UA値0.2台を実現。一年を通じて快適に過ごせる住まいです。収納は一か所に集約し、シューズクローク・WIC・パントリーを用途別に配置。回遊できる動線計画により、家中の移動がスムーズで使い勝手の良い空間になりました。
地価の高い都市部で約20坪の敷地を選んだオーナーのため、まず収納を最適化。収納はファミリークローゼットに集約し、キッチン横には使い勝手の良いパントリーを配置しました。最大の工夫は、小屋裏を固定階段でつなぐ“日常使いできる大容量スペース”。限られた敷地でも広がりのある暮らしを実現しています。さらに、日当たりの良い場所にLDKを配し、明るく心地よい住空間をつくりました。
2階リビングで光をたっぷり取り込み、勾配天井で開放感を高めた住まいです。さらに、元シェフのご主人のご要望に応え、3階には雨の日でも使える約4.5帖のルーフバルコニーを設置。生活空間をすっきり保つため、大容量の多目的パントリーも備えています。2つの事例を紹介しています。
勉強会・見学会・その他サービス情報など
勉強会
6/24
水

勉強会
5/27
水

募集
終了

募集
終了

募集
終了

募集
終了
